GRONINGEN
€ 225.000
Helperzoom 165
2 Kamers
1 Badkamers
1 Slaapkamers
66 m²
G
Onbekend
Bezichtiging plannen
Beschrijving
“Het accent voor Helperzoom 165 ligt op de gunstige ligging én de lichte vertrekken”, aldus Sam Farès Makelaars.
Deze nette bovenwoning aan de Helperzoom in Groningen is licht, heeft een handige indeling en maar liefst twee balkons! Het hoekappartement heeft een gunstige ligging ten opzichte van de omgeving: lekker rustig en met een goede lichtinval. De zijramen versterken dat gevoel en bieden een prettig uitzicht op de groene binnentuinen. De ligging is ook in andere opzichten perfect: je woont hier aan de doorgaande fietsroute naar de binnenstad en dicht bij natuur en het gezellige Helpman. Alle belangrijke voorzieningen zoals supermarkten liggen onder handbereik.
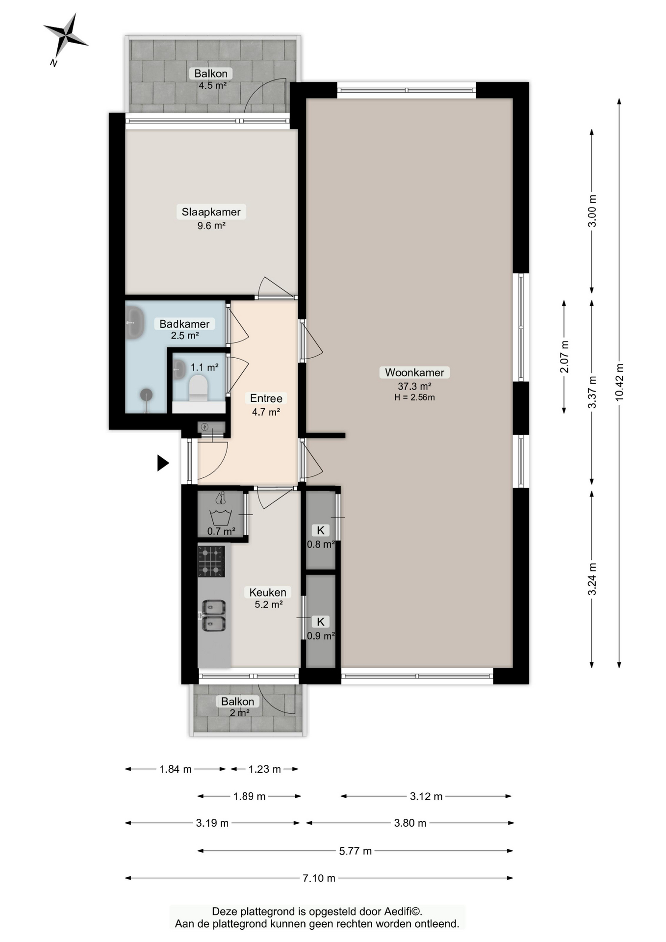
De woning heeft een ruime doorzon woonkamer, met de airco kan de ruimte snel en energiezuinig gekoeld of verwarmd worden. De slaapkamer geeft toegang tot het grote balkon op het zonnige zuiden. Vanuit de nette keuken met inbouwapparatuur kom je op het kleinere balkon aan de noordzijde. Het toilet is modern en voorzien van een zwevend toilet. De badkamer is eenvoudig maar netjes met een wastafel en douche.
Het appartement heeft een eigen berging en is voorzien van onderhoudsvriendelijke kunststofkozijnen met isolerende beglazing. Een deel van het onderhoud en schoonmaakwerk van de gezamenlijke ruimtes komt bovendien op rekening van de actieve VvE. Handig! De VvE bijdrage is opgemaakt uit € 159,14 voor het onderhoud van het complex en € 100,- voorschot stookkosten.
Deze nette bovenwoning aan de Helperzoom in Groningen is licht, heeft een handige indeling en maar liefst twee balkons! Het hoekappartement heeft een gunstige ligging ten opzichte van de omgeving: lekker rustig en met een goede lichtinval. De zijramen versterken dat gevoel en bieden een prettig uitzicht op de groene binnentuinen. De ligging is ook in andere opzichten perfect: je woont hier aan de doorgaande fietsroute naar de binnenstad en dicht bij natuur en het gezellige Helpman. Alle belangrijke voorzieningen zoals supermarkten liggen onder handbereik.
De woning heeft een ruime doorzon woonkamer, met de airco kan de ruimte snel en energiezuinig gekoeld of verwarmd worden. De slaapkamer geeft toegang tot het grote balkon op het zonnige zuiden. Vanuit de nette keuken met inbouwapparatuur kom je op het kleinere balkon aan de noordzijde. Het toilet is modern en voorzien van een zwevend toilet. De badkamer is eenvoudig maar netjes met een wastafel en douche.
Het appartement heeft een eigen berging en is voorzien van onderhoudsvriendelijke kunststofkozijnen met isolerende beglazing. Een deel van het onderhoud en schoonmaakwerk van de gezamenlijke ruimtes komt bovendien op rekening van de actieve VvE. Handig! De VvE bijdrage is opgemaakt uit € 159,14 voor het onderhoud van het complex en € 100,- voorschot stookkosten.
Beschrijving
“Het accent voor Helperzoom 165 ligt op de gunstige ligging én de lichte vertrekken”, aldus Sam Farès Makelaars.
Deze nette bovenwoning aan de Helperzoom in Groningen is licht, heeft een handige indeling en maar liefst twee balkons! Het hoekappartement heeft een gunstige ligging ten opzichte van de omgeving: lekker rustig en met een goede lichtinval. De zijramen versterken dat gevoel en bieden een prettig uitzicht op de groene binnentuinen. De ligging is ook in andere opzichten perfect: je woont hier aan de doorgaande fietsroute naar de binnenstad en dicht bij natuur en het gezellige Helpman. Alle belangrijke voorzieningen zoals supermarkten liggen onder handbereik.
De woning heeft een ruime doorzon woonkamer, met de airco kan de ruimte snel en energiezuinig gekoeld of verwarmd worden. De slaapkamer geeft toegang tot het grote balkon op het zonnige zuiden. Vanuit de nette keuken met inbouwapparatuur kom je op het kleinere balkon aan de noordzijde. Het toilet is modern en voorzien van een zwevend toilet. De badkamer is eenvoudig maar netjes met een wastafel en douche.
Het appartement heeft een eigen berging en is voorzien van onderhoudsvriendelijke kunststofkozijnen met isolerende beglazing. Een deel van het onderhoud en schoonmaakwerk van de gezamenlijke ruimtes komt bovendien op rekening van de actieve VvE. Handig! De VvE bijdrage is opgemaakt uit € 159,14 voor het onderhoud van het complex en € 100,- voorschot stookkosten.
Deze nette bovenwoning aan de Helperzoom in Groningen is licht, heeft een handige indeling en maar liefst twee balkons! Het hoekappartement heeft een gunstige ligging ten opzichte van de omgeving: lekker rustig en met een goede lichtinval. De zijramen versterken dat gevoel en bieden een prettig uitzicht op de groene binnentuinen. De ligging is ook in andere opzichten perfect: je woont hier aan de doorgaande fietsroute naar de binnenstad en dicht bij natuur en het gezellige Helpman. Alle belangrijke voorzieningen zoals supermarkten liggen onder handbereik.
De woning heeft een ruime doorzon woonkamer, met de airco kan de ruimte snel en energiezuinig gekoeld of verwarmd worden. De slaapkamer geeft toegang tot het grote balkon op het zonnige zuiden. Vanuit de nette keuken met inbouwapparatuur kom je op het kleinere balkon aan de noordzijde. Het toilet is modern en voorzien van een zwevend toilet. De badkamer is eenvoudig maar netjes met een wastafel en douche.
Het appartement heeft een eigen berging en is voorzien van onderhoudsvriendelijke kunststofkozijnen met isolerende beglazing. Een deel van het onderhoud en schoonmaakwerk van de gezamenlijke ruimtes komt bovendien op rekening van de actieve VvE. Handig! De VvE bijdrage is opgemaakt uit € 159,14 voor het onderhoud van het complex en € 100,- voorschot stookkosten.
powered by Friva | Lees ons Privacybeleid




























